深圳国际会展中心是亚洲最大(全球最大会客厅)
9月28日,由AUBE欧博设计总承包的深圳国际会展中心经过三年的建设正式竣工落成。深圳市委领导和相关设计单位领导参加落成庆典仪式。
▼深圳国际会展中心鸟瞰

被誉为“全球最大会客厅”的深圳国际会展中心,位于粤港澳大湾区纵深地带,珠三角广深科技创新走廊,狮子洋与内伶仃洋交汇处的会展新城片区,是深圳市委市政府布局粤港澳大湾区的重要引擎。
2016年2月,面向全球范围的深圳国际会展中心设计竞赛确定法国VP AUBE欧博设计联合体的方案中标。在项目实施过程中,AUBE欧博设计作为总承包牵头单位,协同30余家设计顾问单位,采取集成一体化的设计方法,对标国际领先的行业标准,攻克了如大跨度钢结构,建筑消防,机电设计等一系列技术难题,为秉承和实现“一流的设计、一流的建设、一流的运营”目标做出了卓有成效的努力。
▼项目区位示意图

在城市设计方案中,会展综合发展区提出了一河(福永海河)、两带(会展中心核心功能带、会展休闲带)、三片区(西岸片区、东岸片区和南岸片区) 的区域规划结构,以国际会展中心为核心产业辐射周边,带动周边配套综合功能区域的发展,拉动第三产业。“会展岛、会展—海上田园功能轴、复合型的会展休闲带”的场地规划结构,既满足交通要求,又为会展与城市之间创造过渡与衔接,提升了海河沿岸的土地综合开发利用价值,最大可能地将低投入、高产出、无污染、高效益的会展经济土地效益发挥至最大,建构生态性、可持续发展的城市空间骨架。
▼会展休闲带功能分解图

深圳国际会展中心总占地面积约148万㎡,室内展览总面积约50万㎡,整体建成后将成为全球最大的展馆。项目一期总占地面积约121.4万㎡,一期建筑总面积160万㎡,室内展览面积约40万㎡。
▼南入口立面

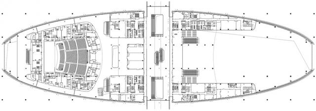
深圳国际会展中心展馆采用鱼骨状布局,一条长1.75km的中央廊道立体串联2个登录大厅、1个接待大厅和19个展厅,包括16个2万m2的标准展厅、2个2万m2的多功能展厅和1个5万m2的超大展厅,是集展览、会议、活动(赛事、娱乐)、餐饮、购物、办公、服务于一体的超大型会展综合体。整体结构规划布局以及模块化组成结构能够高效灵活适应会展专业运营,同时保证设计较短设计周期内落地实施。多功能复合展厅空间可进行灵活转换,适应未来会展活动需求。
▼鱼骨式主体建筑的规划格局

▼登录大厅主入口

▼登录大厅

▼登录大厅外部幕墙

▼南入口挑檐

19座展厅造型流线起伏,结构根据大跨度空间的展厅需求,以拟合建筑外形的单曲立体桁架为结构基本受力单元。结构主体二三层屋面层采用钢结构框架体系,上部曲面屋盖为立体桁架体系。展厅内跨度99米,展厅之间跨度为42米,桁架和框架的连续结构体系形成统一清晰表现语言系,呈现建筑空间力量与美感。
▼标准展厅外立面

▼流线型展厅立面

▼中央廊道

▼中央廊道局部


▼展厅外中廊连接段

▼展厅桁架结构

深圳国际会展中心在绿色建筑方面也进行了一系列探索,项目因地制宜应用了52项全球领先的绿色建筑技术和智慧会展技术,目前已经通过中国国家绿色建筑二星级认证。
▼登录大厅屋顶花园

深圳期待通过全球最大的国际会展中心造一座“会展新城”。未来,新展馆周边将逐步规划为“三城一港”——“三城”分别为国际会展城、海洋新城、会展田园城,“一港”为综合港区。作为全球单体建筑中最大的展馆,深圳国际会展中心将吸引大批国内外会展企业,形成会展产业聚集区,形成以展馆为产业驱动和重要支撑的创新型会展产业生态圈,为该片区带来大量会展资源输入和输出。
▼登录大厅幕墙

▼登录大厅幕墙局部

从经济特区到“先行示范区”,深圳在新时期被赋予了新的使命。作为粤港澳大湾区的城市“超级地标”,深圳国际会展中心的竣工面世,将开启粤港澳大湾区会展经济新时代。
▼北登录大厅二层平面图

▼南登录大厅二层平面图

▼标准展厅一层平面图

业主:深圳市工业和信息化局
建设单位:深圳市招华国际会展发展有限公司
设计总承包联合体:深圳市欧博工程设计顾问有限公司
建筑面积:1,600,000㎡
室内展览面积:400,000㎡
一期工程建设周期:2016.9-2025.9
,
标签:
175
北京将府公园是电子城、酒仙桥、将台地区最大的一处公园绿地 景区简介:北京将府公园是电子城、酒仙桥、将台地区最大的一处公园绿地。公园设计充分考虑利用现有林地条件,挖掘...
75
“刷题搭子不参加高考”事件被热议,当事人的回应揭露人性最自私一面 图源 Veer 精读君通识词典已上线 2034/2000 词条 今天是精读君陪伴你终身成长的第 3532 天 01 上个星期适逢高考,...
198
最有钱的河南 80 后,悬了! 出身底层,一路携手,最终逆天改命赚得 420 亿身价,成为河南最有钱的 80 后夫妻。张国涛和卢依雯曾是无数人艳羡的对象。 但现在,他们正面临前所未有...
114
十大最强鳄鱼,你见过世界上最大的鳄鱼吗?5米,7米10米? 在阅读此文前,麻烦您点击一下“关注”,既方便您进行讨论与分享,又给您带来不一样的参与感,感谢您的支持。 禁止搬...
130
完美世界:重瞳者石毅,最为悲情的人物之一 “重瞳本是无敌路,何须再借他人骨” 他是完美世界中最为悲情的人物之一,也是一个很难用好坏去评价的人,他就是重瞳者石毅。 石毅...
74
世界上最深的海洋,太平洋最深11034米 海洋是存在于地球上的大型水体或盆地。它比湖泊和河流大。如果你不住在海边,可能你对大海的认知会非常少,更不要提海洋最深处有什么,或...
50
东北巨骗陨落史:演过《刘老根》花重金买各种名誉,最终锒铛入狱 《陈相贵:从荧幕明星到铁窗生涯的蜕变》 在光怪陆离的娱乐圈与商界交汇处,陈相贵的人生轨迹犹如一部跌宕起...
152
北京下雪了!最新雪景图公布 最新北京天气预报 据北京市气象局官方微博消息,24日夜间我市出现降水天气, 大部分地区降水相态以雨为主,高海拔山区为降雪 ,其中 延庆佛爷顶积雪...
151
贵州大学2024年贵州省录取分数线汇总!最高法学602分! 贵州大学2024年贵州省录取分数线汇总!最高法学602分! 贵州大学 (Guizhou University),简称“贵大”,位于贵州省贵阳市,是教...
157
priest最新短篇悬疑小说《桥头楼上》晋江评分9.9,一如既往好看 《桥头楼上》 作者:priest 站在桥上看风景,看风景的人在楼上看你; 明月把高楼照成画,画挂在桥头成了风景。 ——...
134
又是一场战略对决,中国集结近30年最强兵力,美军3航母坐镇东亚 《东亚海域紧张升级:中国军力展示,美国三航母应对》 在世界的东方,一场无声的较量正在展开。就在叙利亚战火...
163
前苏联“黑蜘蛛”,足坛二十世纪最伟大的门将——列夫·雅辛 摘要:足球史上唯一一位获得这一荣誉的守门员,外号“黑蜘蛛”、“八爪鱼”的前苏联传奇球员列夫·雅辛。 如果说足...
147
千万别来浙江理工大学?浙江理工大学什么水平? 最近... 千万别来浙江理工大学?浙江理工大学什么水平? 最近,有一些关于千万别来浙江理工大学的言论引起了广泛关注,究竟是怎...
65
中国最近发生的重大事件:聚焦博鳌亚洲论坛与科技创新 阅读此文前,麻烦您点击一下“关注” ,既方便您进行讨论与分享,又给您带来不一样的参与感,感谢您的支持。 在春意盎然...
160
最后海报送走宿敌广东!辽宁2个字暗含4大深意,大辽王朝正式到来 北京时间4月15日,CBA辽宁和广东的系列赛已经结束了前两场,现在辽宁男篮再次揭晓了他们的第3幅宣战大海报,有可...
200
“最美渣女”林韦君:情路坎坷,45岁单身却活出真我风采 在娱乐圈这片星光璀璨的天地里,林韦君的名字总是与一段段精彩却曲折的情感故事相伴。她被誉为“最美渣女”,不仅是因...
72
2024年广东各大学录取分数线表(含本科最低投档分) 2024年广东省内本科院校录取投档线显示, 历史类分数范围在428分~615分之间,物理类分数范围在442分~624分之间 ,考生只要上了本科...
50
从轨道交通到全球最大高铁网,不容错过!中国火车的发展史! #头条创作挑战赛# 中国火车的发展史是一部充满波折和辉煌的历史,从1865年北京的“展览铁路”到2020年拥有14万公里铁...
52
最强高空高速战略侦察机——SR-71(黑鸟) SR-71侦察机(译文:黑鸟),是美国空军使用的喷气式远程高空高速战略侦察机。1963年由美国洛克希德公司的臭鼬工厂研制生产,1964年首飞,19...
51
中国核潜艇最深能潜多少米?中国核潜艇曾下潜230米就发生变形 中国核潜艇到底最深能潜多少米呢?这个问题长期以来一直困扰着西方军事观察者,由于核潜艇的最大潜深能力直接关系...